Two bedroom apartments
Makarska Apartments
Code : S701
Location: Makarska Apartments
size: 73,66m2
Price m2 : 3598
A completely renovated and furnished apartment for sale in Makarska, below the main road
Two bedroom apartment with sea view in Makarska
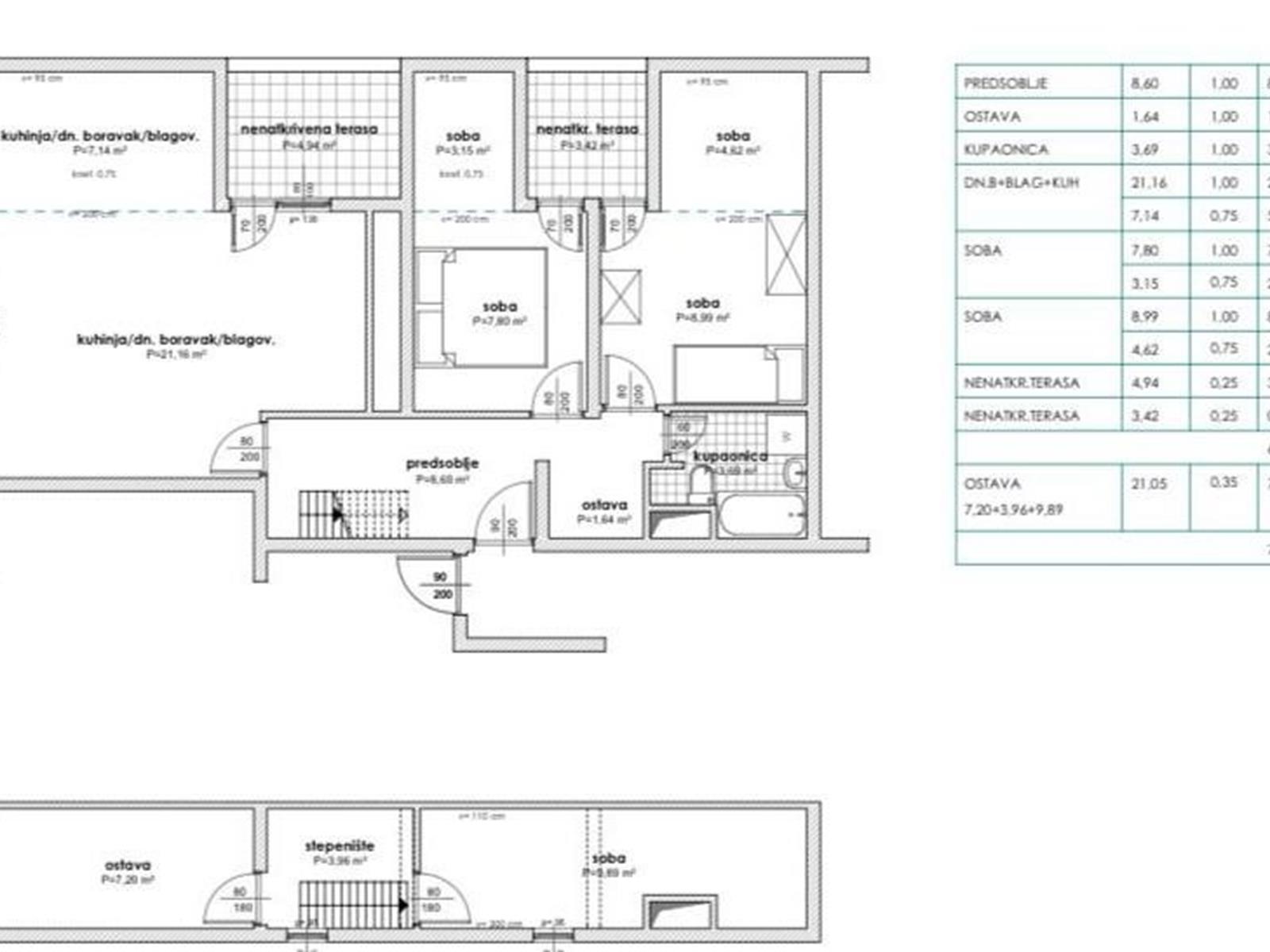
A completely renovated and furnished apartment for sale in Makarska, in the eastern part of the city, below the main road. The total usable area is 73.66 m2 (gross area 81.58 m2).
The apartment consists of a hallway, two bedrooms with a shared loggia, bathroom, utility room/laundry room, living room with kitchen, dining room and loggia, and on the second floor of the attic there are two utility rooms, and a large utility room that can be used as a children's room.
The building is located right next to a high school and kindergarten and not far from the city center and the beach. It was built in 1991, but the apartment was completely renovated at the end of 2021.
The complete electricity and water installations have been changed, all openings have been replaced, and security doors have been installed. During the renovation, underfloor heating was installed in all rooms.
The apartment is located on the 4th floor of a residential building with a fantastic view of the sea and the city harbor.
The spacious apartment is located in an ideal location, which is only a few minutes' walk from the city center, shopping center, sports center, school and kindergarten, and is an ideal location for living as well as for tourism. The process of collecting documentation for the construction of an elevator in the building is ongoing.
There is a public parking lot in front of the entrance to the building. There is a possibility to buy a garage space of 15 m2.
The owner of the apartment is also the first owner of this apartment, and the building is in the process of condominium ownership.
Details of real estate
Code : S701
Price : 265000
Price Action: 0
Area: 73,66
Price m2 : 3598
Floor: 4. kat
Total n.of floors: 4
Balcony : 3,42
Loggia: 4,94
Number of bedrooms : 2
Number of Bathrooms: 1
Max.number of beds: 6
Distance from the sea: 600
Distance from the center: 400
Built in: 1991
Years of last adaption : 2022
The grossly developed surface of the building: 81,58
Energy efficiency class: C
Features of properties
- TV-sat
- Phone
- Burglary doors
- Fully equipped bathroom
- Air conditioning
- Resolving paper in progress
- Immediately ready to in
- Fully furnished
- Modernly furnished
- East-oriented real estate
- View of Biokovo
- apartment in the attic
- Internet
- Pantry
- Below the Adriatic Highway
Code : S701
Location: Makarska Apartments
size: 73,66m2
Price m2 : 3598






















